Luftkanal-Set

Montage an Außenwände bzw. Kellerbereich

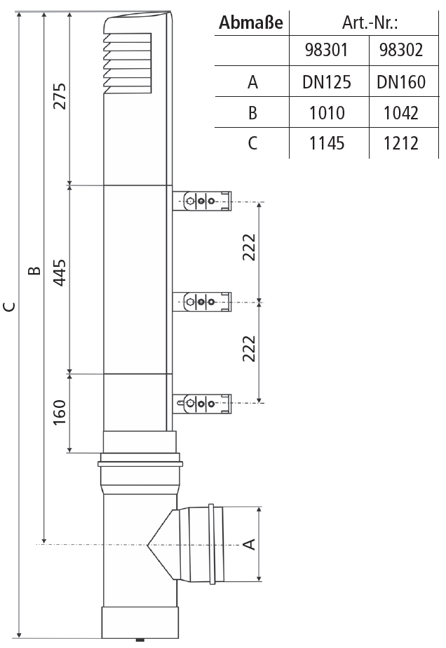
Luftkanal-Set DN125-RAL7015

Art.-Nr.: 98301

Lüftungsrohr aus Polypropylen (PP) für die Zu-/Abluftführung in Kellerbereiche mit T-Stückanbindung inklusive Kondensatablauf, halbovale Zwischenelement und Aufsatzelement mit Lüftungslamellen. Montagemöglichkeiten bzw. Fixierung der Kanalsetbauteile mittels Ösen an der Wand. Lieferung inklusive Befestigungsmaterial wie Schellen, Halterungen, Schrauben und Dübel. Abdichtung der Rohrdurchführung gegenüber Mauerwerk bauseitig.

Bestehend aus:
1 x Luftauslasskanal DN125, Farbe: grau (RAL7015)
1 x Adapter DN 125
1 x T-Stück DN125 mit Kondensatablauf
1 x Befestigungssatz

Luftkanal-Set DN160-RAL7015

Art.-Nr.: 98302

Lüftungsrohr aus Polypropylen (PP) für die Zu-/Abluftführung in Kellerbereiche mit T-Stückanbindung inklusive Kondensatablauf, halbovale Zwischenelement und Aufsatzelement mit Lüftungslamellen. Montagemöglichkeiten bzw. Fixierung der Kanalsetbauteile mittels Ösen an der Wand. Lieferung inklusive Befestigungsmaterial wie Schellen, Halterungen, Schrauben und Dübel. Abdichtung der Rohrdurchführung gegenüber Mauerwerk bauseitig.

Verwendungshinweis:
Das Luftkanal-Set DN160-RAL7015 ist in Kombination mit einem Wandlüfter Serie AIRODOR für die Zu-/Abluftführung von Kellerräumen verwendbar. Die Einbauhülse Airodor/L500 oder L800 ist kompatibel mit der T-Stück-Anbindung.

Bestehend aus:
1 x Luftauslasskanal DN160, Farbe: grau (RAL7015)
1 x Adapter DN 160
1 x T-Stück DN160 mit Kondensatablauf
1 x Befestigungssatz

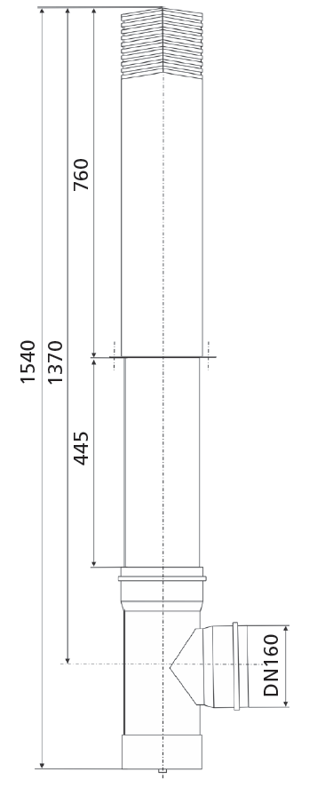
Luftkanal-Set DN160-V2A

Art.-Nr.: 98300

Lüftungsrohr aus Polypropylen (PP) für die Zu-/Abluftführung in Kellerbereiche mit T-Stückanbindung inklusive Kondensatablauf und Zwischenelement. Das runde Aufsatzelement (Turm) mit Lüftungslamellen besteht aus wetterbeständigem Edelstahl (V2A). Montagemöglichkeiten bzw. Fixierung der Kanalsetbauteile mittels Rohrschellen an der Wand. Für die Montage des Aufsatzelementes wird ein bauseitiger Fundamentsockel benötigt. Abdichtung der Rohrdurchführung gegenüber Mauerwerk bauseitig. 

Verwendungshinweis:
Das Luftkanal-Set DN160-V2A ist in Kombination mit einem Wandlüfter Serie AIRODOR für die Zu-/Abluftführung von Kellerräumen verwendbar. Die Einbauhülse Airodor/L500 oder L800 ist kompatibel mit der T-Stück-Anbindung.

Bestehend aus:
1 x Edelstahltower DN160
1 x Rohrverlängerung 600 mm DN 160
1 x T-Stück DN160 mit Kondensatablauf
1 x Befestigungssatz

Unterlagen & Anleitungen

AUSSSCHREIBUNGSTEXTE (Link zu ausschreiben.de)

Luftkanal-Set

Nicht das Richtige gefunden?